Cottages united by entrance

Refugee Meranza in Maranza, Italy by Andreas Gruber

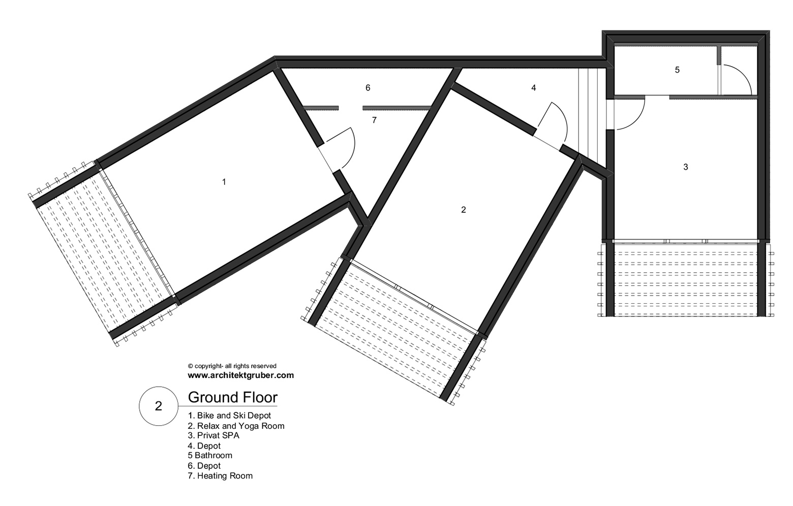
Do as little damage as possible and preserve as much as possible of the surroundings and the slope on which the cottages stand. This was Andreas Gruber’s philosophy in creating the three holiday cottages in South Tyrol, which attracts tourists from near and far, keen to enjoy the outdoor pursuits of the nearby Dolomites. The buildings are visually connected as a single unit, while still being independent and designed with small niches to give the guests privacy, even with the over-sized windows.

The vertical façade is made of spruce, exposed on the gable ends, but with the other sides clad in sheet-metal sprayed black. The exciting look extends into the interior, where the volumes are built around a spiral staircase, made of black steel. But beyond that, wood dominates the interior, with floors and walls in brushed spruce reflecting the neighbouring forest, the scent of which lingers in the air inside and out. For an even stronger sense of this, guests can use the private spa facilities located in the forest.

w| architektgruber.com

Read the latest stories